Elbbogen Dresden

Auftraggeber: Sternstraße Dresden Grundstücks GmbH

BGF: 37.700 m²

Leistungen: LP 1-2 Wettbewerb 1. Preis

Maßnahmen: Neubau und städtebauliche Entwicklung

Zeitraum: 2019 - 2020

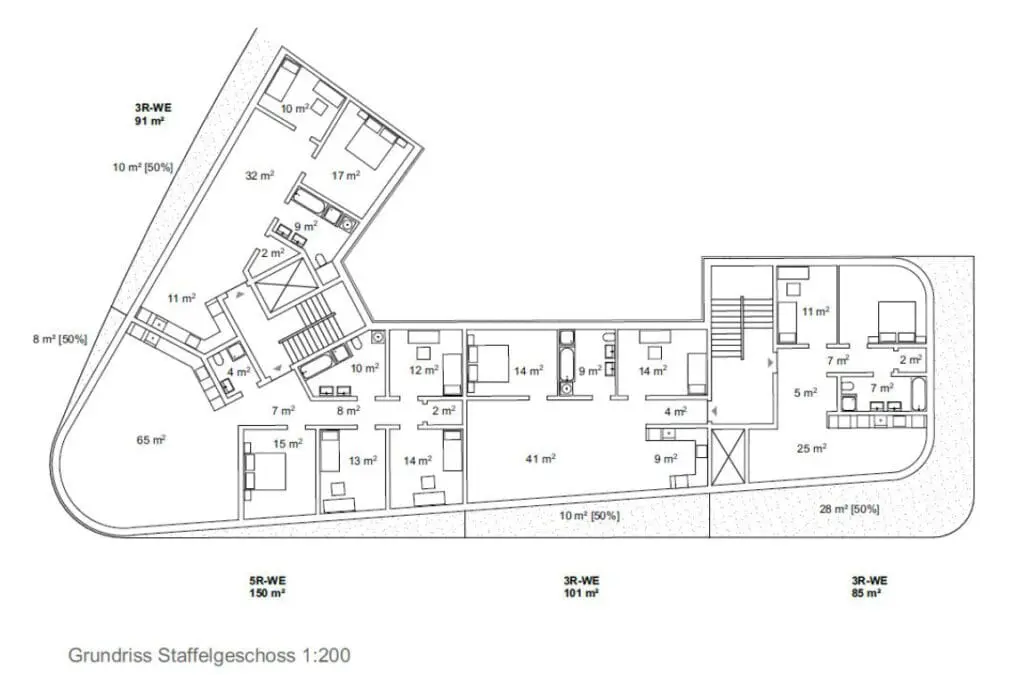
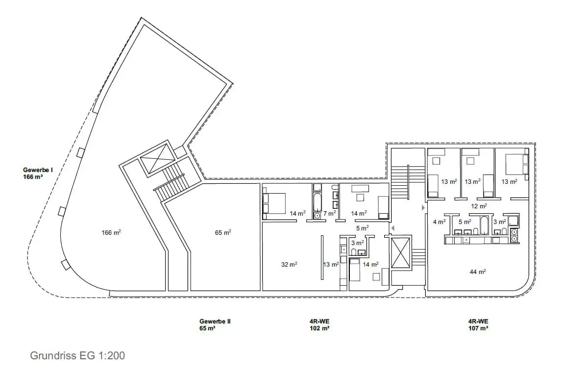
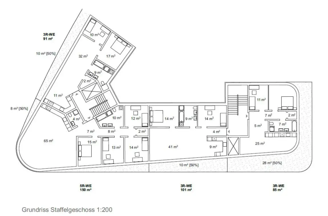
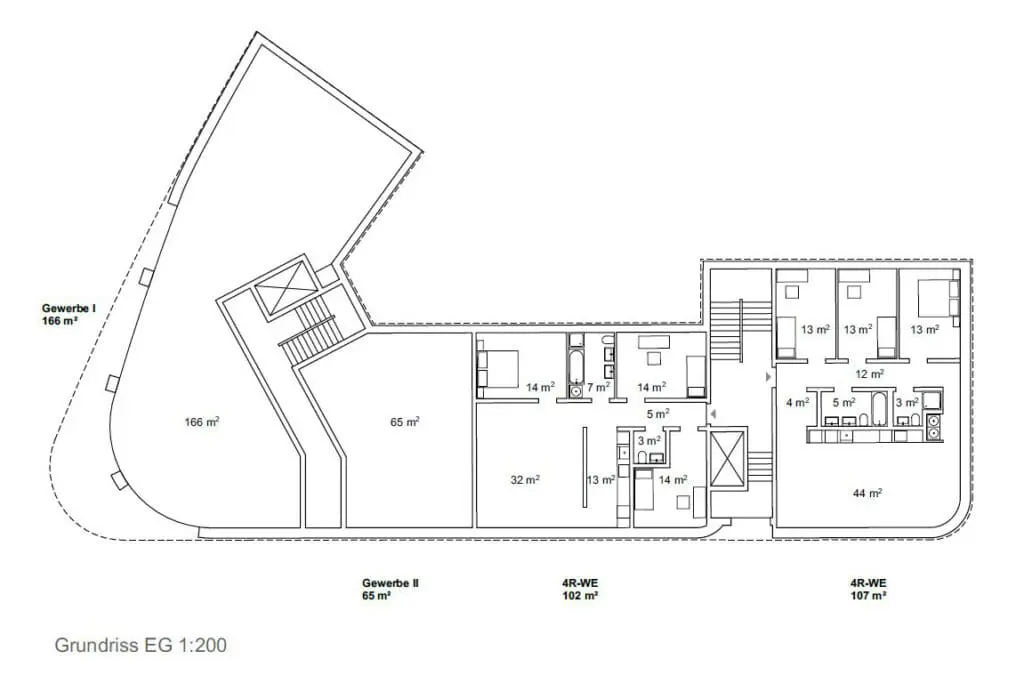
Die Bebauung des Areals am Elbbogen in Dresden nimmt Gestalt an: TSSB gewinnt den kombinierten Städtebau, Architektur und Fassadenwettbewerb für ein großes neues Wohngebiet an der Flutrinne. Der städtebauliche Entwurf gliedert sich, durch das Ausbilden der Eckbebauung zum Brückenkopf, klar in einen großzügigen, urbanen Straßenraum und eine offene Bebauungsstruktur in Richtung Flutrinne und Grünzug. Der gebogene Straßenverlauf wird durch das Ausrunden der Gebäudeecke weitergeführt und leitet dadurch den Wechsel zur Uferkante ein. Eine städtebauliche Betonung erfährt das Eckgebäude durch das bis an die Hauptfassade vorgezogene Staffelgeschoss mit der Wirkung, dass das Dachgeschoss an der Ecke zu 6 Geschossen heranwächst. Die leicht zurück versetzte Gewerbezone im Erdgeschoss ermöglicht ein Auskragen, der sich darüber befindlichen Geschosse und gibt zudem den Blick auf das Naturdenkmal der Flutrinne frei. Das schräge Herausziehen der Staffelgeschosse an der runden Ecke wird zum Leitmotiv der Gebäude. So erfährt die lange Fassade eine Gliederung und die freistehenden Solitäre entwickeln eine lokale Identität. Durch das Leitmotiv des Klinkers, ist die Fassade auch trotz stark wechselnder Witterungsverhältnisse in Elbnähe langlebig und wird in ihrer Optik zudem nicht beeinträchtigt. Umlaufende Gesimsbänder aus stehenden Klinkerformaten gliedern das Gebäude in seiner Horizontalität und stärken sogleich das Sockelgeschoss mit seinen Gewerbeeinheiten. Filigrane Balkongeländer aus Rundstäben lockern die Gesamterscheinung auf. Die Fassaden erhalten wiederkehrende Fensterteilungen mit stehenden Formaten, welche den Charakter des Quartiers maßgeblich prägen. Das Erdgeschoss als Sockelgeschoss wird betont und optisch abgesetzt. Um ein einheitliches Gesamtbild zu erhalten, wird in den Regelgeschossen darauf verzichtet die Zwischenpodeste der Treppenhäuser an der Fassade abzubilden. Durch das Zurücksetzen jener Podeste sind die Fenster noch öffenbar. Prägend für die straßenseitige Fassade ist das Auslaufen der Staffelgeschosse hin zu den Gebäudeecken des Baufelds, sowie zum mittleren Baukörper. Das Thema der angeschrägten Dachgeschosse wird in den Solitären zur Flutrinne aufgegriffen und verbindet durch die aufgelockerte Dachlandschaft Architektur mit Freiraum. Als Material werden hochwertige Klinkerriemchen verschiedenen Farbnuancen vorgesehen. Diese frostbeständige Fassadengestaltung wird auf die Massivwände mit Dämmung aufgeklebt und bietet einen praktischen Schutz der Außenhülle vor Feuchtigkeitseindringung und Nässe. Der angrenzende Grünraum der Flutrinne vernetzt sich tief in das Quartier bis hin zur Hoffassade. Rankgerüste an den Balkonen im Innenhof gewährleisten eine natürliche Verschattung im Sommer und verbessern das Mikroklima an heißen Tagen. Zudem wird den Anwohnern die Möglichkeit gegeben „urban gardening“ direkt auf dem eigenen Balkon zu betreiben. Zipscreens und Fallarmmarkisen als Sonnenschutz ergänzen die qualitativ hochwertige Gesamterscheinung. Die Farbgebung der Innenhöfe orientiert sich an den Klinkern der Straßenfassade und bietet eine Vielfalt. Die Dächer werden als Flachdächer aus Stahlbeton mit extensiver Begrünung vorgesehen und erhalten eine umlaufende Attika. Durch Verwendung von dauerhaften und natürlichen Materialien, wie Klinker, bleiben die Fassaden lange ansehnlich, ohne neue Veredelung der Oberflächen. Hofseitig, ermöglichen die Rankgerüste eine grüne Aufwertung mit individuellen Nutzungsmöglichkeiten durch die Bewohner. Die individuelle Gestaltung der Fassaden ermöglicht den Anwohnern, trotz großer Fassadenlängen, Identität mit dem Ort zu entwickeln und diesen wertzuschätzen. Die Verwendung der Materialien, ihren natürlichen Eigenschaften entsprechend, in Verbindung mit einer modernen Bauweise ist ökologisch nachhaltig und schafft dadurch einen ökonomischen Mehrwert.

Ähnliche Projekte

2025-02-01-JG-503
Visualisierung-1-V3
Perspektive-Strasse-bearbeitet