Wettbewerb Neubau und Sanierung des Albert-Schweitzer-Gymnasiums Hamburg

Auftraggeber: SBH Schulbau Hamburg

Leistungen: VGV mit Lösungsvorschlag

Maßnahmen: Sanierung und Erweiterung

Zeitraum: 2021

Das Albert-Schweitzer-Gymnasium liegt auf einem einzigartigen Grundstück im Grünen, teilweise im Landschaftsschutzgebiet, direkt am Alsterlauf. Auch architekturhistorisch stellen die denkmalgeschützten Bauten von Bernhard Hermkes eine´Besonderheit da. Ein rücksichtvoller, nachhaltiger und gleichzeitig funktionell allen modernen Anforderungen entsprechender Umgang ist die Grundlage für den Entwurf. Die Idee den denkmalgeschütztenBaukörper nicht zurückzubauen, um an gleicher Stelle einen Neubau zu errichten, sondern durch die bereits vorhandenen Gebäudeformen sowie -sprachen zu erweitern, spiegelt die Einstellung zur Nachhaltigkeit des Albert-Schweitzer-Gymnasiums wider. Auch auf den Abbruch des gut gelegenen und funktionierenden Anbaus an der Aula wird verzichtet. In Abstimmung mit der Schule und der Denkmalbehörde kann der Aula-Anbau durch Änderungen in der Außenhülle nachhaltig so umgestaltet werden, dass er sich besser indas Denkmalensemble einfügt. Die zu erhaltenden Bestandsgebäude werden saniert. Die Fassadengestaltung des Neubaus nimmt die Materialität des Bestandes auf und interpretiert diese durch eine zeitgemäße Gestaltung neu. Verwendung finden vor allem helle Ziegel, welche die Farblichkeit des Bestandes aufnehmen, sowie Holzverschalung. Bei der Auswahl der Materialien wird besonderer Wert auf Nachhaltigkeit und Langlebigkeit der Rohstoffe gelegt. Durch die großzügige Verglasung der Gemeinschaftsräume im Erdgeschoss werden diese mit ausreichend Tageslicht versorgt. Eine Verschattung wird in Form von Textilscreens mit vorgesehen und stellt zugleich die Verbindung zum Außenraum her. Die hochwertigen Holz-Aluminium-Fenster runden das Erscheinungsbild durch die Farbwahl ab. Die Gestaltung der Grünflächen erfolgt durch die Errichtung eines neuen Schulbiotops, Schmetterlingsweiden und einer Revitalisierung des bereits bestehenden Schulgartens. Eine zusätzliche Begrünung der Dachflächen schafft zusätzliche Ausgleichsflächen für Kleinstlebewesen.

Ähnliche Projekte

Visualisierung-1-V3
Perspektive-Strasse-bearbeitet
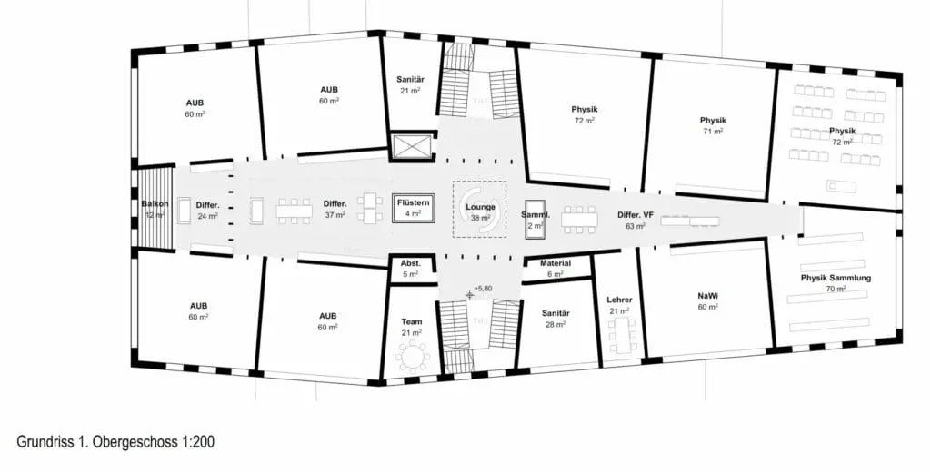
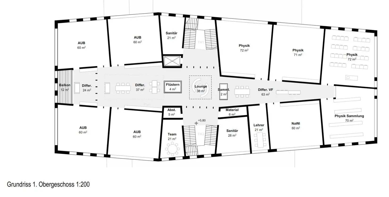
OG_180526_D700-142-80