Beethovenquartier Erlangen

Städtebaulicher und hochbaulicher Realisierungswettbewerb mit städtebaulichem Ideenteil

Leistungen: LP 2

Zeitraum: 2022

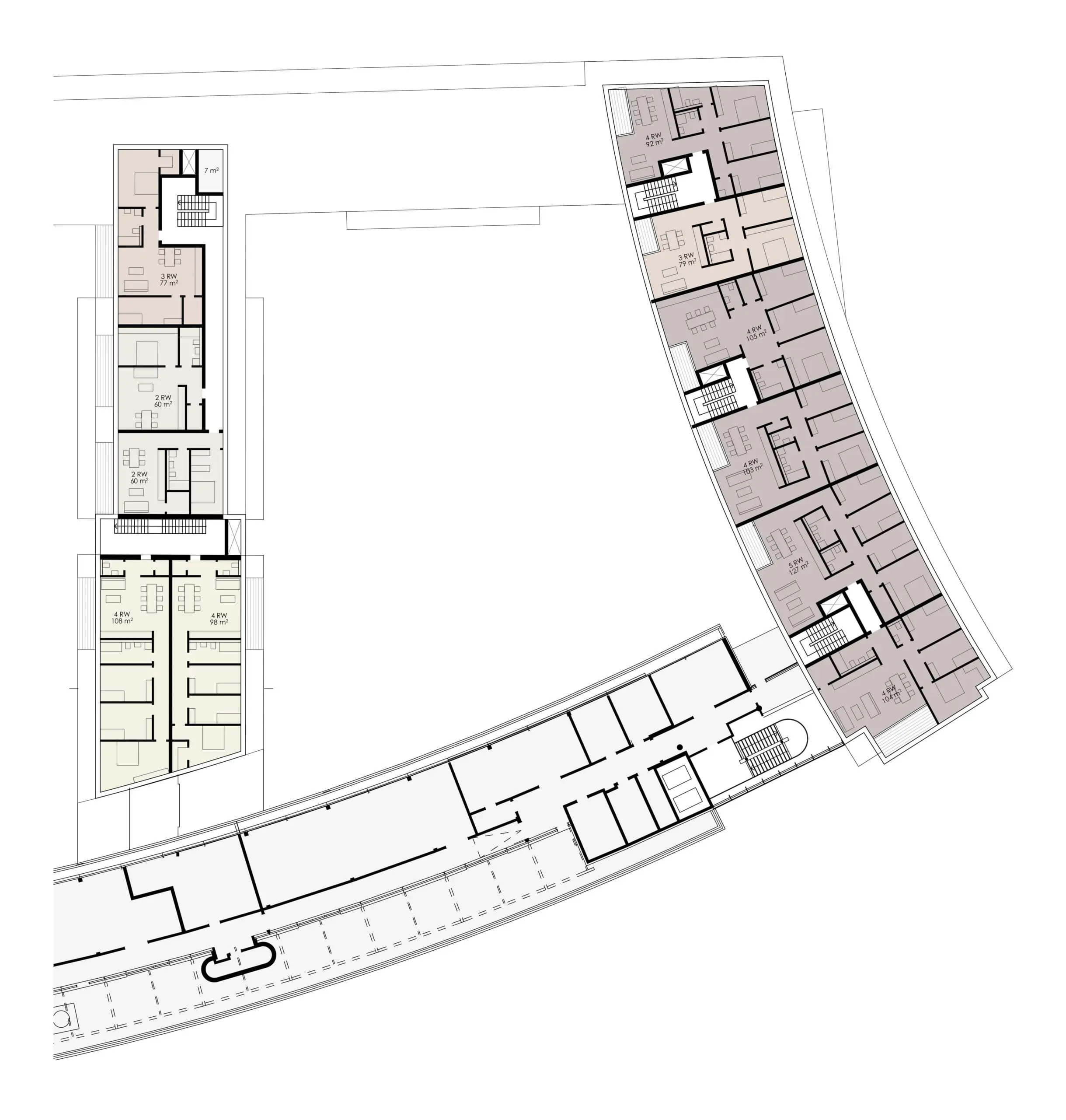
Als städtebauliche Kernidee wird das Areal als Quartier geschlossen und erhält einen Hochpunkt an einer der markantesten Straßenecken Erlangens. Zugleich bildet das Hochhaus den Auftakt für die Achse der Wissenschaft. Allgemein erhält das Gebiet eine neue städtebauliche Ruhe in einem sehr heterogenen Umfeld. Die Höhenentwicklung der Baukörper liegt im Wesentlichen bei 5 Geschossen mit einfacher oder 2-facher Staffelung. Zur Sieboldstraße staffelt es bis zu 8 Geschossen und der Turm erhält 12 Geschosse. Die Abstände zwischen den Baukörpern sind großzügig trotz einer wirtschaftlichen Ausnutzung des Grundstücks. An der großen Werner-von-Siemens-Straße (Süd) erhält die neue Bebauung behutsam die bestehende Bausubstanz der „Banane“ auf ergänzt Sie am Kopfende selbstverständlich mit einem Hochhaus. Der Übergang auf der Sieboldstraße (Ost) zum benachbarten derzeit im Bau befindlichen Quartiers aus Wohnen und Gewerbe wird durch einen gebogeneren Neubauriegel erreicht und schafft eine Verbindung des zurückversetzten hohen Gebäudeteils des Nachbarn mit dem neuen Hochpunkt. Der ergänzende „Flügel“ führt die differenzierten Fluchten der benachbarten Bebauung weiter. Durch die gebogene Form erhält auch der neue Haltepunkt eine qualitätsvolle Vorzone. Als Abschluss der Achse der Wissenschaft bildet der neue Hochpunkt eine Gemeinschaft mit den anderen Hochpunkten insbesondere dem gegenüberliegenden Himbeerpalast. Durch das Zurückstaffeln von der Hauptfassade nimmt der Hochpunkt auch Rücksicht auf dieses Denkmal und orientiert sich an der Höhe des Himbeerpalastes mit ca. 38 m. Die Bögen der Sockelgestaltung betonen die besondere Formgebung mit der Herleitung aus dem gebogenen Bestand. Für die Haltestelle entsteht durch die gebogene Anordnung eine Freifläche, die auch zusätzlicher Aufenthaltsqualität vor den Gewerbeflächen für Cafés und weitere Nutzungen ermöglicht.Die Nutzungsverteilung der Grundrisse folgt den Vorgaben. Die Nord-Süd ausgerichteten Wohnungen entlang der Beethovenstraße sind als „Durchstecker“-Wohnungen konzipiert. Zur Sieboldstraße werden auf Grund des Schallschutzes diese ebenfalls durchgesteckt. In den „Fingern“ ermöglicht die Ost-West-Ausrichtung wirtschaftliche Wohnungen zu beiden Himmelsrichtungen. Die Gewerbeeinheiten befinden sich im EG der Sieboldstraße und im Bestand der Banane. Diese können in unterschiedlichen Größen zusammengelegt werden. Die unterschiedlichen Wohnungen und Wohnungsgrößen werden mit der geforderten Zimmeranzahl und Funktionen erfüllt. Für die Großzügigkeit der Wohnungen werden verschiedene Grundrisskonzepte wie offene Wohnküchen die zum Teil auch abtrennbar sind, sowie Umlauf um mittelliegende Nebenräume für Großzügigkeit innerhalb der Wohnung angeboten.Die kompakte Bauweise von einem Verhältnis Wohnfläche zu BGF spart Ressourcen und kombiniert Energieeffizienz mit Wirtschaftlichkeit. Die Nutzung der großen Dachflächen mit Photovoltaik in Kombination mit Dachbegrünung lässt eine sehr gute Energiebilanz erwarten. Anstelle konventioneller Bohrpfähle wird die Gründung als Energiepfähle hergestellt. Mit dieser Doppeltnutzung als Energiepfähle lässt sich die im Erdreich vorhandene Erdwärme nutzen. Die Geothermie ist eine umweltbewusste und günstige Methode zur effektiven Nutzung von nachhaltigen Ressourcen. Das Regenwassermanagement ermöglicht die Anforderung an das Schwammstadtprinzip. Ebenso werden die Wasserflächen als Nutzung für Regenrückhaltung genommen. Ein wichtiger Nachhaltigkeitsgedanke ist der Erhalt von wertvollem Bestand. Hier wird die „Banane“ bis auf des Dreieck an der Spitze unversehrt erhalten. Nur im EG werden neue Zugänge hergestellt, sowie Fassadenbegrünung ergänzt. Der sommerliche Wärmeschutz erfolgt mit außenliegendem Sonnenschutz und wird ergänzt durch die Fassaden- und Balkonbegrünungen. In den tieferliegenden Innenhöfen werden bodengebundene Bäume gepflanzt. Die Holzhybridbauweise bindet CO2 und ermöglicht es einen neutralen CO2-Fußabdruck zu hinterlassen. Es kommen nur natürliche Oberflächen und langlebige Materialien an die Fassaden wie Klinker und Holz-Aluminium Fenster zum Einsatz.

Horizontal gegliederte Holzfassaden bilden den Ausgangspunkt für die architektonische Fassadengestaltung

Die Fassaden zur Beethovenstraße geben durch unterschiedliche Gestaltung in Holz und Putz eine abwechslungsreiche Fassadengestaltung wieder

Ähnliche Projekte

2025-02-01-JG-503
Visualisierung-1-V3
Perspektive-Strasse-bearbeitet