Grundschule Hedwigstraße

Wettbewerb für den Neubau der Grundschule Hedwigstraße Berlin – 2. Platz

Auftraggeber: SozDia-Stiftung Berlin

BGF: 4661 m²

Leistungen: LP 1-2 Wettbewerb 1. Preis

Maßnahmen: Neubau Grundschule Berlin

Zeitraum: 2021

Baukosten: 13,4 Mio €

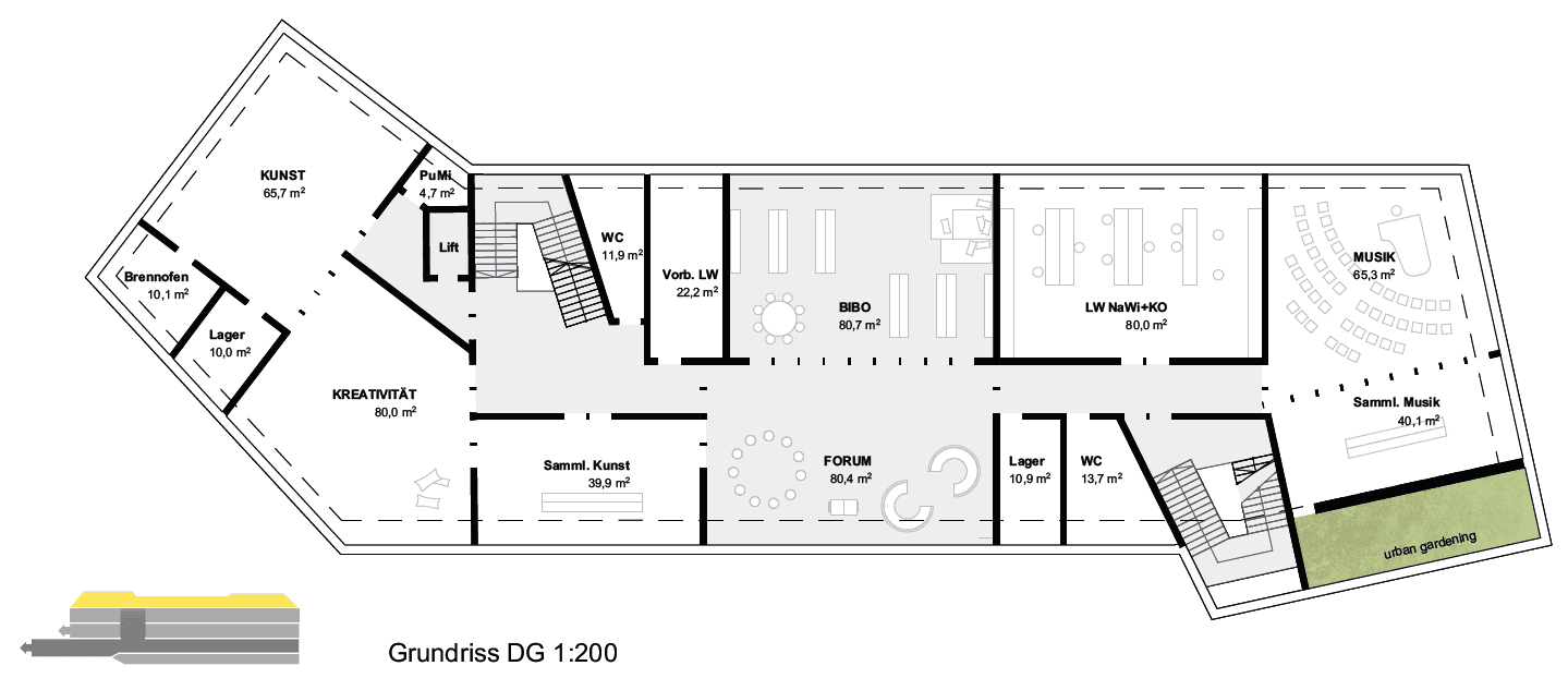
Unser Vorschlag für den Neubau der Grundschule Hedwigstraße in Berlin, das als dynamisches Gebäude Ökologie, Umgebung und Nutzen vereinbart, hat den 2. Platz gewonnen. Die Lage des Grundstücks ist von einer inhomogenen Struktur aus Zeilenbauten, einer halbrunden Kita und einer freistehenden Wohnbebauung geprägt. Dabei vermittelt die polygonale Form des Baukörpers zwischen der runden Form der Kita und den linearen Zeilenbauten. Durch das Herabziehen des Daches, reduziert sich die gefühlte Traufhöhe des 4-geschossigen Gebäudes auf die eines 3-geschossigen und die Verteilung der Nutzungen wurde so gewählt, dass sich auch für die jüngeren Kinder kurze Wege ergeben, da bei Grundschulen üblicherweise eine 2-geschossige Bauweise bevorzugt wird. Die Fachkabinette wie Musik und Kunst liegen daher im DG mit der Möglichkeit hier die Besonderheit der Hochpunkte der Dachform als hohe und besondere Räume zu nutzen. Im EG befinden sich die Verwaltung und die weiteren Funktionsräume. Davon sind die großen Räume für Bewegung und Mensa über eine große Freitreppe erreichbar, die drei Stufen tiefer liegt und eine größere Raumhöhe und Verbindung nach außen ermöglicht. Ein zentraler Eingangsbereich verbindet alle Etagen und schafft eine großzügige Eingangssituation. Vor dem Bewegungsraum und der Mensa sind tieferliegende befestigte Außenbereiche vorgesehen, zu denen man direkt heraustreten kann. Hier lassen sich auch der Sport und das Essen nach außen verlagern. Die Freitreppe im Inneren wird in der Verlängerung im Außenraum fortgesetzt und verdeutlicht die Beziehung von Innen und Außen. Auf den Etagen der Lerngemeinschaften ermöglicht die zentrale Anordnung des Forums in Kombination mit dem Teilungsraum eine flexible Raumnutzung ohne die klassische Fluranordnung. Als ökologischer Hauptbaustoff kommt der nachwachsende Rohstoff Holz zum Einsatz. Die Fassade aus unbehandeltem Thermoholz ermöglicht ohne weitere Beschichtung eine dauerhafte und nachhaltige Fassade. Diese erlebt im EG ein Farbspiel durch das Herausdrehen und die farbige Gestaltung der Leibungen. Das geneigte Dach mit seinen unterschiedlichen Steigungen wird als Stehfalzdach in patiniertem Titanzink ausgeführt. Der Flachdachbereich im DG wird zur Photovoltaikanlage und die Dachfläche im 1. OG als intensiv begrüntes Dach für den Schulgarten genutzt. Die Schule wird als Nullenergiehaus konzipiert und die Energieversorgung besteht aus einer Kombination von Photovoltaik und Luftwärmepumpe. Die Freiflächen nutzen die vorhandene Struktur der Kita und ergänzen diese an der westlichen Grundstücksgrenze mit altersgerechtem Spiel- und Sportflächen. Diese dynamische Struktur schlängelt sich entlang des Baukörpers und führt bis in ein kleines Wäldchen, welches durch den erhaltenen Baumbestand einen besonderen Ort auf dem Grundstück ausbildet. Die Dachterrasse im ersten Obergeschoss, welche auch als Schulgarten und Erholungsraum genutzt werden kann, wird spielerisch durch eine Rutsche und anliegender Freitreppe mit den Außenanlagen verbunden. Eine zusätzliche Terrasse im Dachgeschoss bietet die Möglichkeit Urban Gardening zu betreiben und dient vor allem der Lernwerkstatt Kochen als eigenes kleines Kräuter- und Gemüsebeet inklusive einer Bienen- und Schmetterlingsweide.

Ähnliche Projekte

Visualisierung-1-V3
Perspektive-Strasse-bearbeitet
OG_180526_D700-142-80